横浜市グループホーム 開所計画【バリアフリー施工事例】
【No.13】2022年13月 施工事例
新築のグループホームを開所する -プライベートが確保できるアパート型-
横浜市に新しいグループホームを開設するために、新築工事を行いました。
一見すると普通のアパートにしか見えない外観は、「施設」らしさを排除し、地域の中でより自然な形で生活するのに役立ちます。
| 場所 | 神奈川県横浜市 |
| 建物データ | 新築、アパート |
外観 -地域に溶け込むため「施設」らしさを排除する-
障害を持ちながらも地域で生活するという観念から、「施設」という見た目を避け、一般のアパートとほぼ変わらない外観にすることにより、横浜の住宅街に溶け込むようになりました。


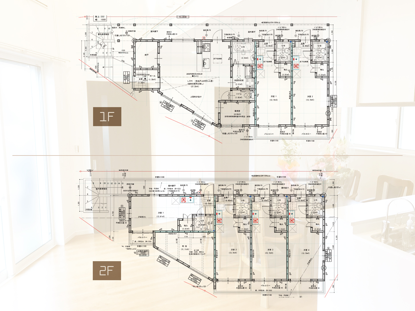
設計・図面/リビング・キッチン

居室は極力広くとり、出入り口を外廊下にすることで、より入居者様の独立性を保っています。各部屋に浴室、トイレも完備。普通のアパートと同じように住むことができます。




入居者様が集まりやすいリビングは、吹き抜けになっており自然光がはいって明るい印象になりました。キッチンは対面式。コミュニケーションの取りやすく、会話が絶えない居場所です。
独立性の高い居室


各部屋には浴室とトイレを完備。一般のアパートとほぼ変わらない生活が可能です。

玄関は外廊下とつながっており、プライベートを守りやすい個室になっております。
ご利用ありがとうございました!
11-1140


